搜尋.台南市

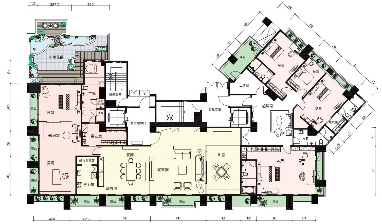
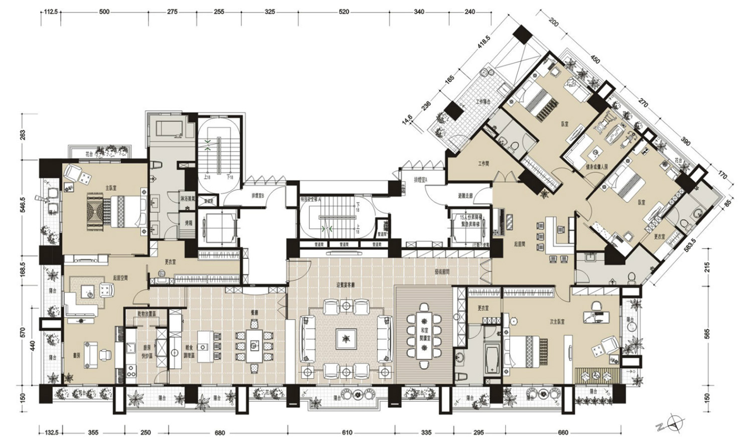
15樓傢俱配置參考圖
5房.3廳.5衛浴.1和室.雙廚房、四方大器迎光。
200坪五星總統套房級生活座艙、一層一戶 雙電梯與雙向出口的王者殿堂。

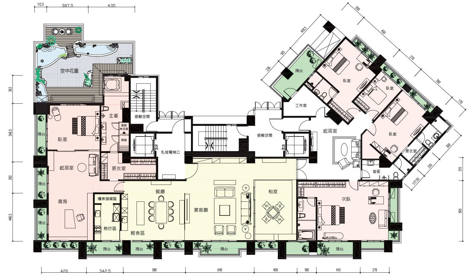
16樓傢俱配置參考圖
5房.3廳.5衛浴.1和室.雙廚房、四方大器迎光。
205坪五星總統套房級生活座艙、一層一戶 雙電梯與雙向出口的王者殿堂。

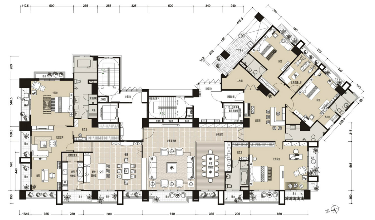
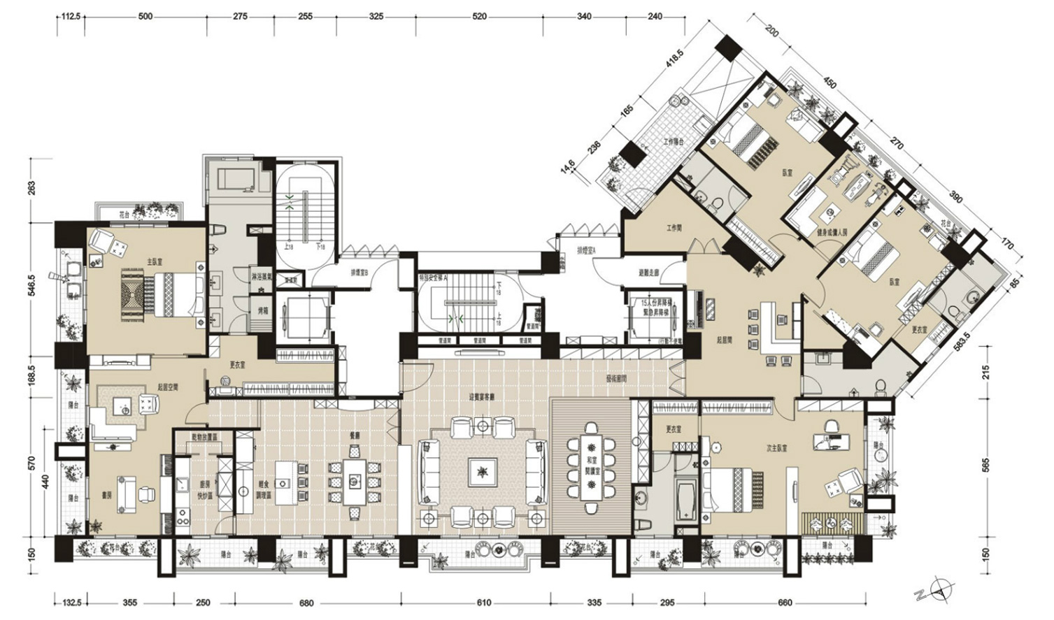
3-14樓A、B棟傢俱配置參考圖
2大廳.4房+1和室.1獨立廚房.4衛浴、感性與理性交融的完美佈局空間。
◎ 一層兩戶、單層獨立梯廳單向進出不擾鄰的豪門獨戶設計,讓彈性獨立的私密宅邸更顯尊寵。 
◎ 尊貴防火防暴銅雕藝術大門加設耶魯數位電子門鎖,安全防護更增無懈可擊。 
◎ 絕無僅有的內、外玄關設計,徹底分界了內用珍藏品與外用便利品的收納。
地址:台南市中西區金華路四段22號/購屋專線:/訪客人數:
2
6
2
4
3
3
訪客人數:
2
6
2
4
3
3
回頂部