關於我們
公司沿革
經營理念
新建案場
完工熱銷
近期推出
歷年業績
購屋專線
選單
關於我們
公司沿革
|
經營理念
新建案場
完工熱銷
近期推出
歷年業績
購屋專線
回首頁
個案首頁
簡介
環境地段
平面圖
建案圖片
基地位置
接待中心
搜尋.台南市
區域
建築類型
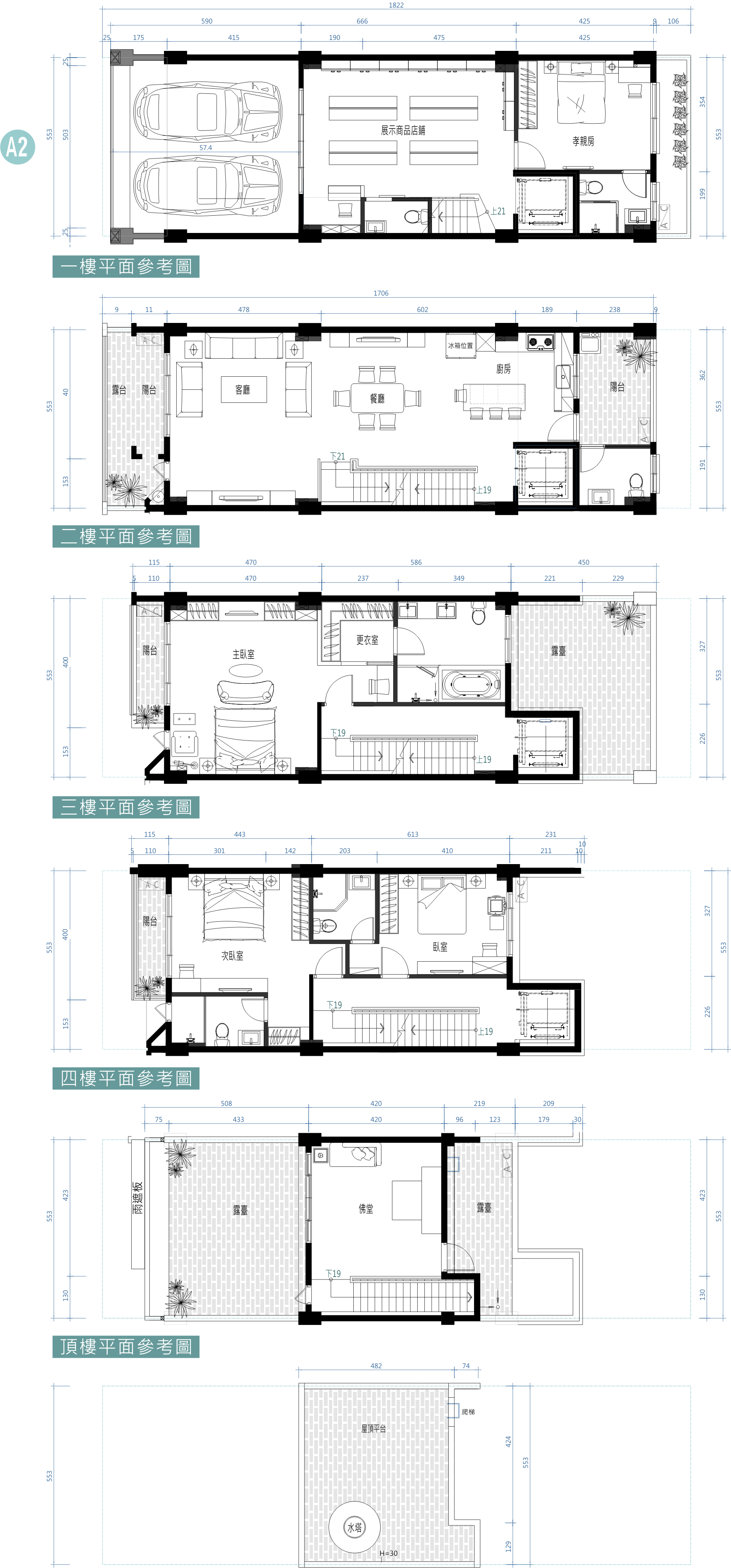
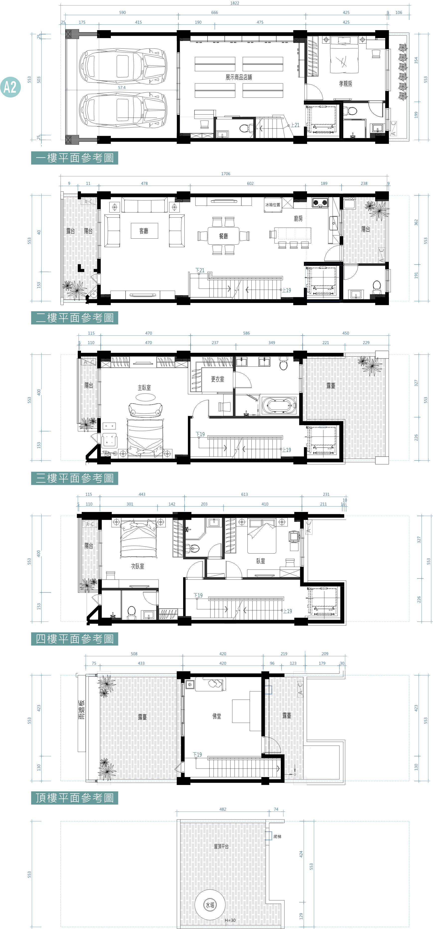
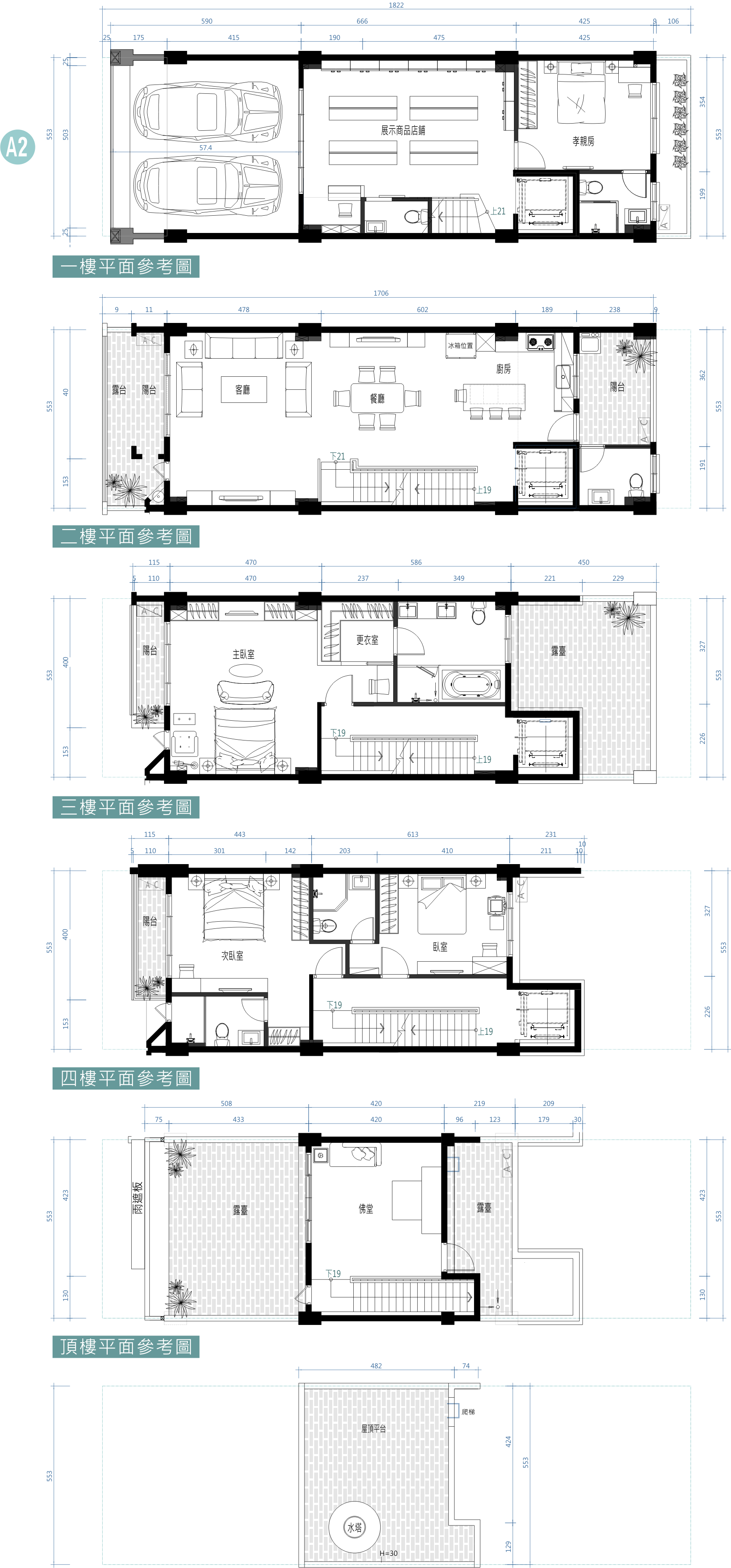
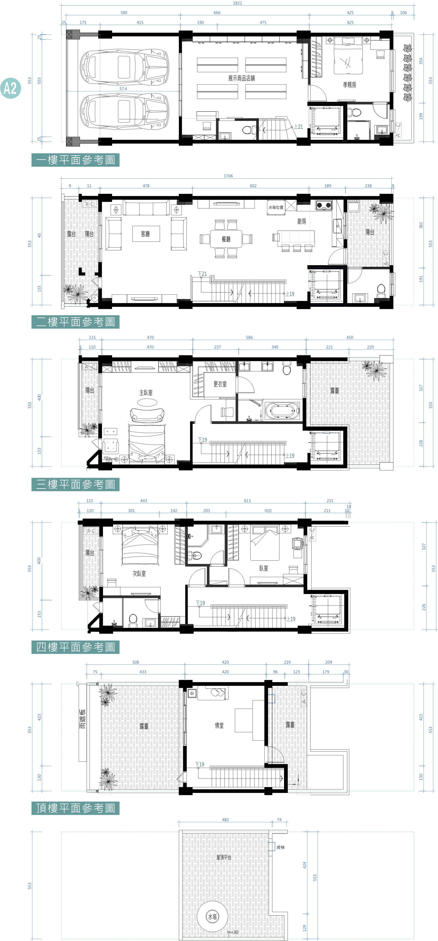
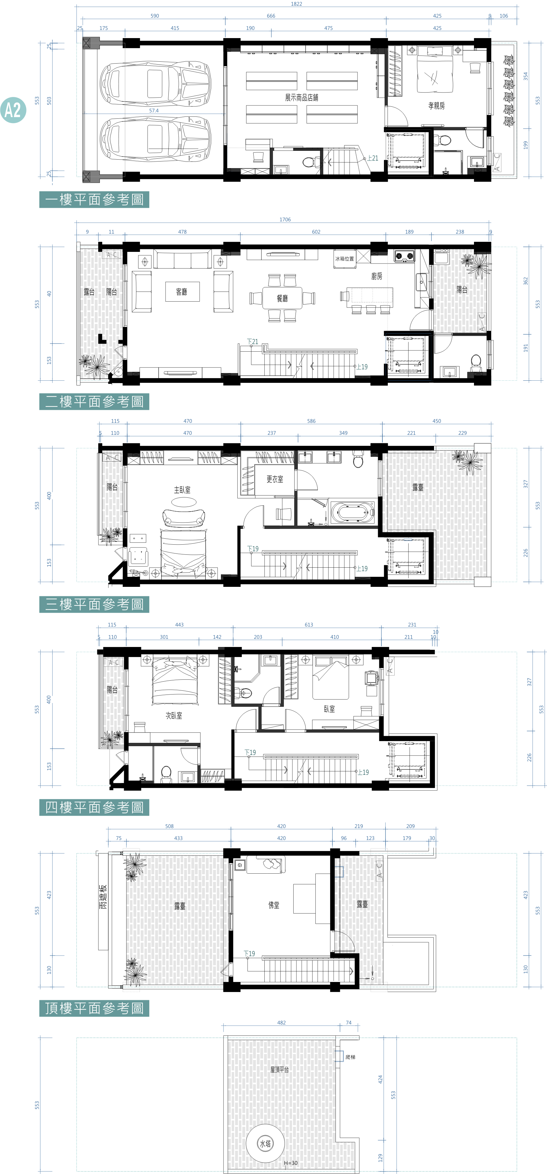
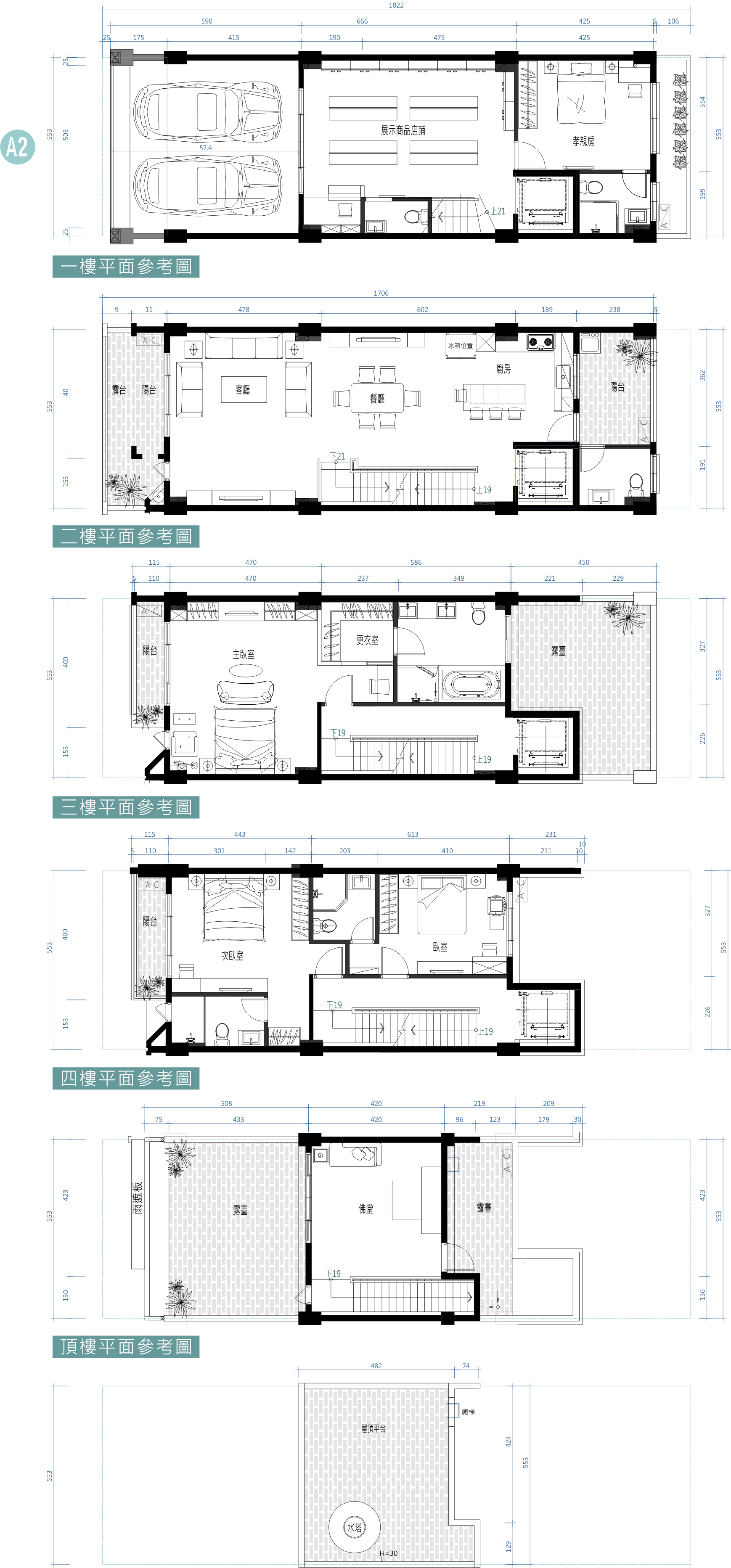
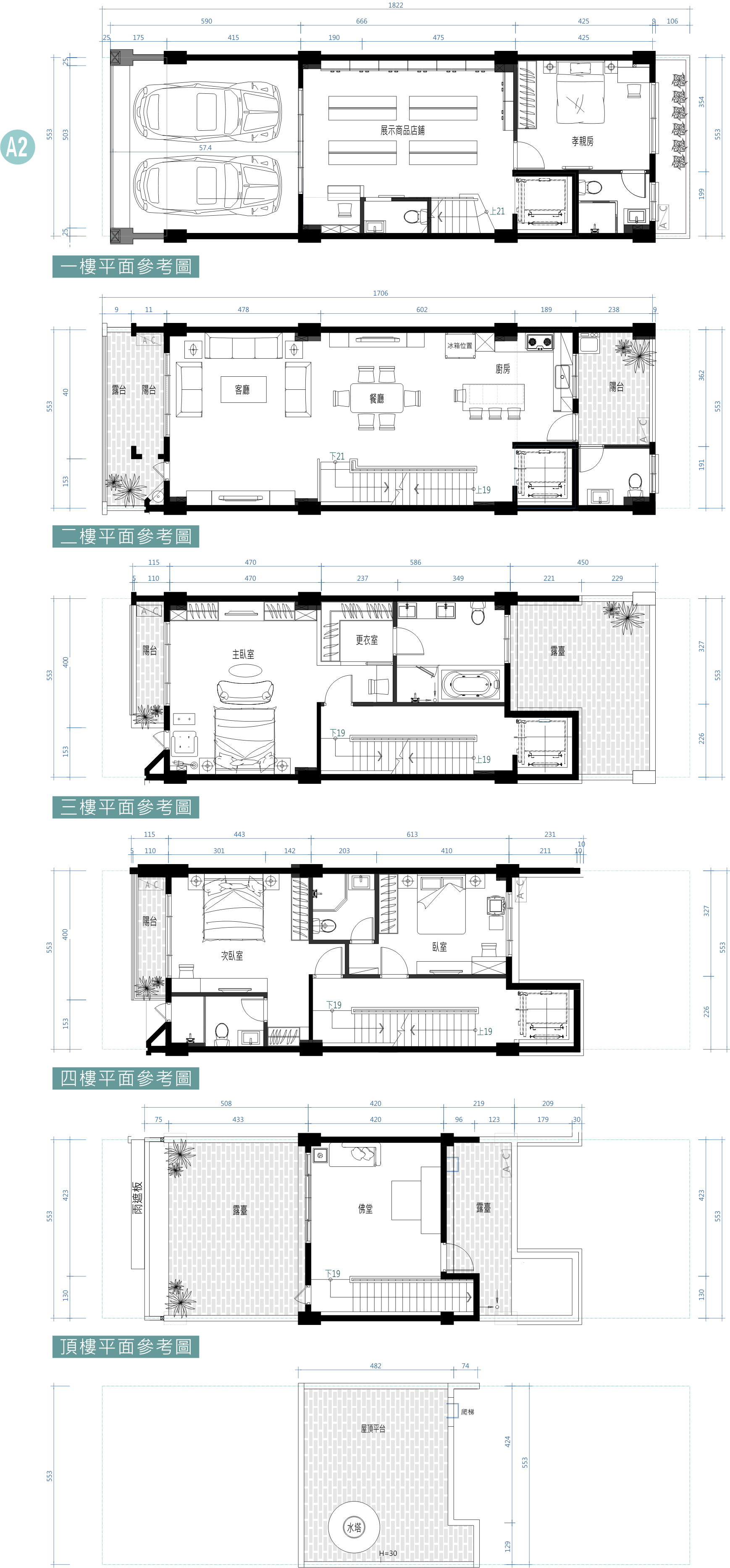
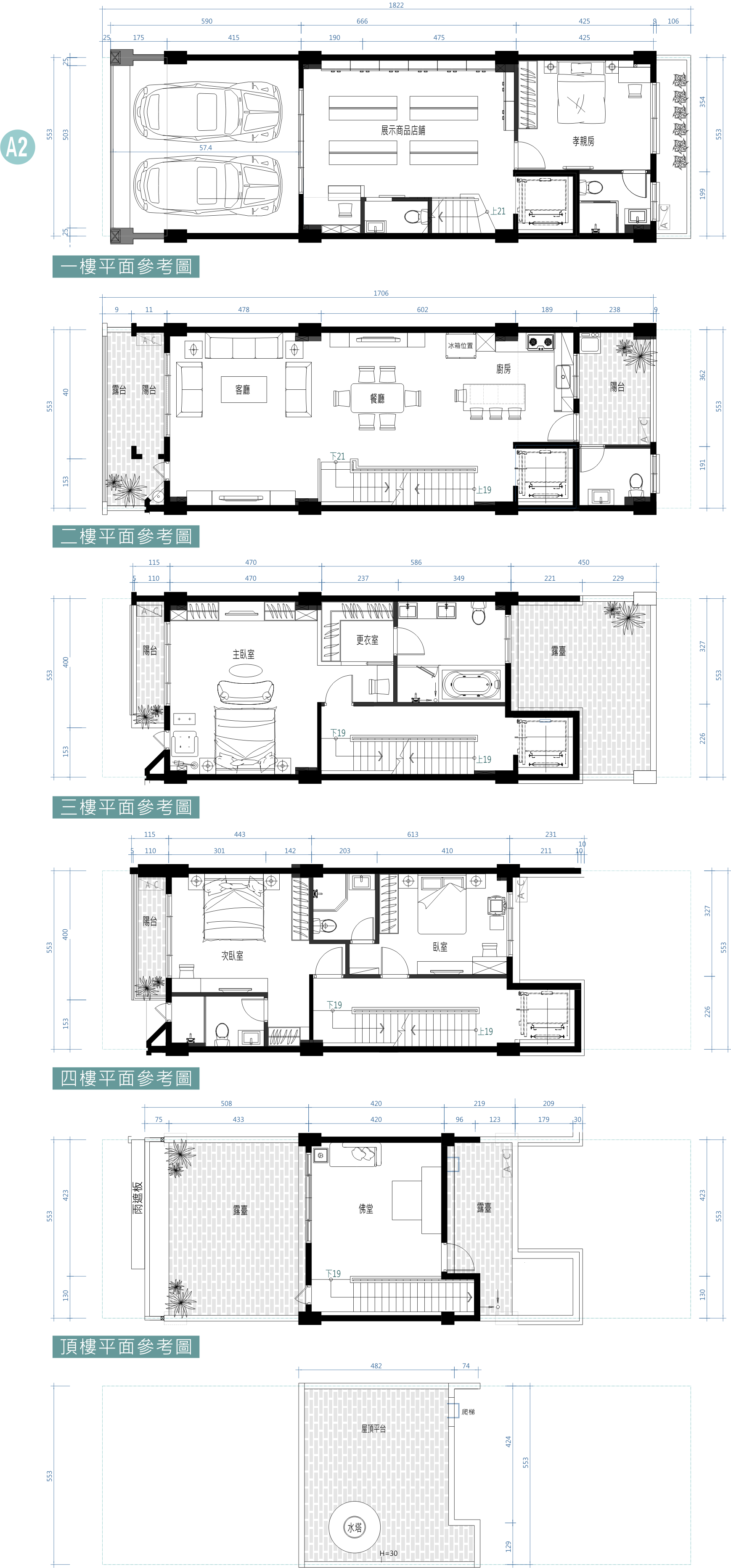
A2平面傢俱配置參考
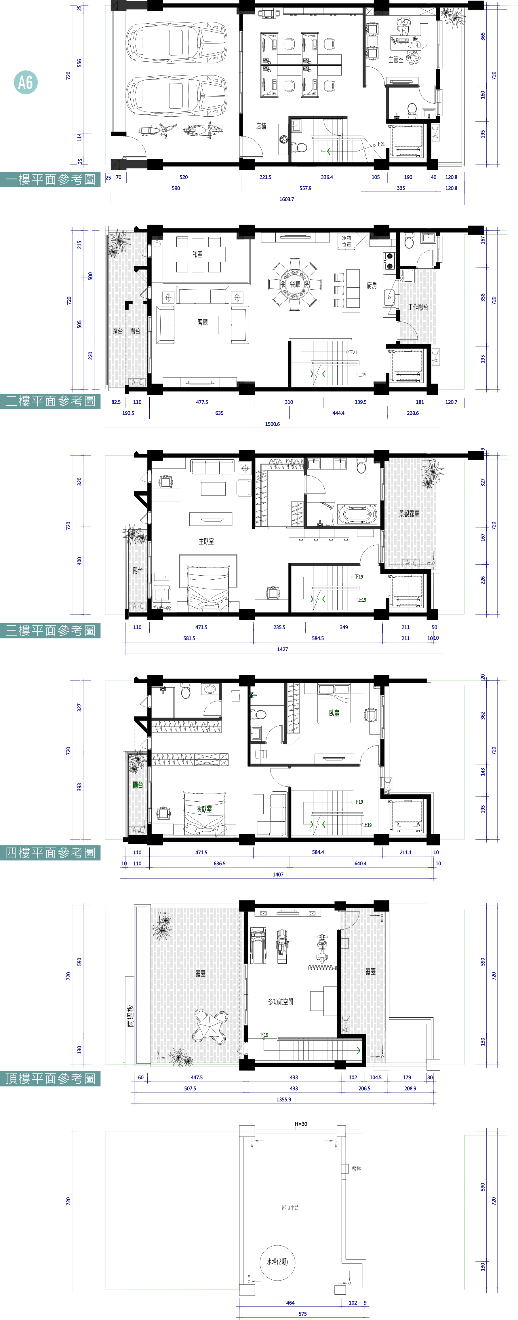
A6平面傢俱配置參考
A7平面傢俱配置參考
請點圖放大
請點圖放大
請點圖放大
請點圖放大
請點圖放大
地址:尊南街與惠南街交叉口/購屋專線:0913 808080/訪客人數:
2
6
2
4
6
3
建案選單
個案首頁
簡介
環境地段
平面圖
建案圖片
基地位置
接待中心
訪客人數:
2
6
2
4
6
3
回頂部